Delet Nieruchomości
Mieszkanie - M30 - 91,70 m² - 4 pokoje
Mieszkanie - M30 - 91,70 m² - 4 pokoje
Aby zarezerwować mieszkanie napisz do nas na czacie lub wypełnij formularz kontaktowy.
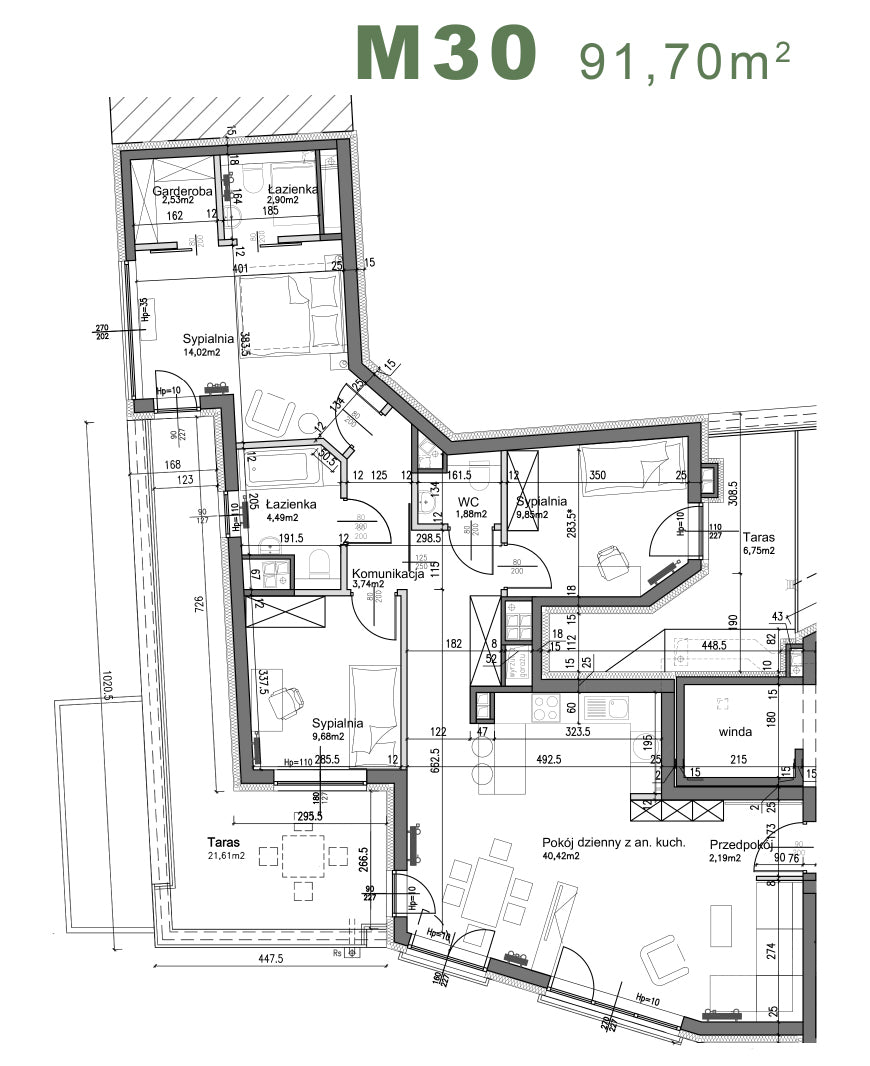
Prezentujemy Państwu ekskluzywny apartament M30 o powierzchni 91,70 m², zlokalizowany na trzecim piętrze nowoczesnego budynku przy ulicy Śliwkowej w Krakowie. To przestronne czteropokojowe mieszkanie zostało zaprojektowane z myślą o najbardziej wymagających klientach ceniących luksus, przestrzeń i wyjątkowe rozwiązania architektoniczne.
Centralnym punktem apartamentu jest imponujący salon z aneksem kuchennym o powierzchni 40,42 m². Ta przestronna strefa dzienna została ergonomicznie rozplanowana - część kuchenna wyposażona jest w miejsce na kompletne wyposażenie AGD oraz wygodną wyspę kuchenną, podczas gdy rozległa strefa wypoczynkowa pozwala na swobodną aranżację przestrzeni jadalnianej i wypoczynkowej. Duże przeszklenia zapewniają doskonałe doświetlenie wnętrza i prowadzą na przestronne tarasy i balkony.
Strefa prywatna apartamentu obejmuje trzy niezależne sypialnie: pierwszą o powierzchni 14,02 m², drugą o powierzchni 9,85 m², trzecią o powierzchni 9,68 m². Taki układ stwarza idealne warunki dla rodziny z dziećmi, zapewniając każdemu domownikowi własną przestrzeń. Komfort codziennego użytkowania podnoszą dwie pełnowymiarowe łazienki (4,49 m² oraz 2,90 m²), dodatkowe WC (1,88 m²), praktyczna garderoba (2,53 m²) oraz wygodna strefa komunikacji (3,74 m²). Niewielki, ale funkcjonalny przedpokój (2,19 m²) stanowi punkt wejściowy do apartamentu.
Wyjątkowym atutem mieszkania jest spektakularna przestrzeń zewnętrzna w postaci dwóch tarasów (19,08 m² oraz 6,75 m²) i dwóch balkonów (6,58 m² oraz 6,05 m²) o łącznej powierzchni 38,46 m². Te dodatkowe strefy zewnętrzne doskonale sprawdzą się jako miejsca wypoczynku, organizacji spotkań towarzyskich czy uprawiania małego przydomowego ogródka.
Szczegółowe parametry mieszkania:
- Powierzchnia użytkowa: 91,70 m²
- Pokój dzienny z aneksem kuchennym: 40,42 m²
- Sypialnia 1: 14,02 m²
- Sypialnia 2: 9,85 m²
- Sypialnia 3: 9,68 m²
- Łazienka 1: 4,49 m²
- Łazienka 2: 2,90 m²
- WC: 1,88 m²
- Przedpokój: 2,19 m²
- Komunikacja: 3,74 m²
- Garderoba: 2,53 m²
- Taras 1: 19,08 m²
- Taras 2: 6,75 m²
- Balkon 1: 6,58 m²
- Balkon 2: 6,05 m²
Apartament wyróżnia się przemyślanym układem funkcjonalnym, który zapewnia wyraźny podział na strefę dzienną i prywatną. Na szczególną uwagę zasługuje wyjątkowo przestronny salon z aneksem kuchennym oraz rozbudowana strefa sanitarna, które znacząco podnoszą komfort codziennego życia rodziny. Ekspozycja względem stron świata oraz duże przeszklenia gwarantują optymalne nasłonecznienie wszystkich pomieszczeń.
Ten ekskluzywny apartament idealnie sprawdzi się dla rodzin z dziećmi, osób prowadzących działalność zawodową z domu, a także dla wszystkich, którzy cenią sobie przestrzeń i możliwość elastycznej aranżacji wnętrz. Połączenie czterech pokoi, dwóch łazienek, dodatkowego WC oraz spektakularnej przestrzeni zewnętrznej stanowi unikatową propozycję na rynku nieruchomości.
udostępnij

Standard Mieszkania
Tynki wewnętrzne
W pokojach, kuchni oraz korytarzach zastosowano maszynowe tynki gipsowe (kat. III lub zgodnie z Polską Normą). W łazienkach użyto tynków cementowo-wapiennych lub gipsowych, przystosowanych do indywidualnego wykończenia.
Podłogi
Wszystkie mieszkania wyposażone są w wylewki cementowe, zatartych na gładko, przygotowanych pod indywidualne wykończenie.
Stolarka
Okna PCV trzyszybowe o bardzo dobrej izolacji termicznej (U≤0,9 W/m²K), w kolorze białym od strony wewnętrznej. Wyposażone są w mikrowentylację lub nawiewniki. Parapety wewnętrzne wykonane z konglomeratu, zewnętrzne – metalowe. Drzwi wejściowe antywłamaniowe klasy RC3.
Balkony i tarasy
Posadzki balkonów oraz tarasów wykonane są z wylewki cementowo-betonowej, gotowej do indywidualnego wykończenia. Balustrady metalowe, malowane proszkowo, z eleganckim wypełnieniem ze szkła VSG.
Instalacja elektryczna
Każde mieszkanie posiada indywidualnie opomiarowaną instalację elektryczną, zabezpieczenie różnicowo-prądowe oraz kompletny osprzęt (gniazda 230V, przełączniki, przyłącze trójfazowe do kuchenki ceramicznej lub indukcyjnej).
Instalacja centralnego ogrzewania
Ciepło dostarczane z sieci miejskiej MPEC. Grzejniki płytowe wyposażone w głowice termostatyczne. Indywidualne liczniki ogrzewania znajdują się w szafkach rozdzielczych na korytarzu.
Instalacja wodno-kanalizacyjna
Instalacja kanalizacyjna wykonana z rur PCV z podejściami do wszystkich urządzeń sanitarnych. Ciepła i zimna woda dostarczana z sieci MPEC z indywidualnymi licznikami w szafkach na korytarzu.
Instalacja telefoniczna i internetowa
Do każdego mieszkania doprowadzono światłowód. Instalacja gotowa do indywidualnego wyposażenia w router i inne urządzenia (po stronie nabywcy).
Instalacja wideodomofonowa
Każde mieszkanie posiada instalację wideodomofonową z monitorem, zapewniającą wygodną obsługę drzwi wejściowych do budynku.
Instalacja antenowa
Na dachu budynku zamontowana jest antena zbiorcza, instalacja doprowadzona jest bezpośrednio do każdego mieszkania.