Kolekcja: Parter

Inwestycja na parterze oferuje kameralny wybór sześciu starannie zaprojektowanych mieszkań o zróżnicowanych metrażach, dostosowanych do różnorodnych potrzeb przyszłych mieszkańców. Każde z mieszkań charakteryzuje się przemyślanym układem funkcjonalnym oraz dostępem do własnej przestrzeni zewnętrznej.
Mieszkanie M01 (48,07 m²) Funkcjonalne mieszkanie dwupokojowe z ogródkiem ok. 20,51 m². Przestronny salon z aneksem kuchennym (28,57 m²) połączony jest z prywatnym ogródkiem. Mieszkanie posiada sypialnię (10,41 m²), wygodną łazienkę (3,72 m²) oraz przedpokój (5,37 m²).
Mieszkanie M02 (45,48 m²) Kompaktowe mieszkanie z własnym ogródkiem, idealne dla młodych par lub singli ceniących sobie przestrzeń i prywatność.
Mieszkanie M03 (64,07 m²) Największe mieszkanie w ofercie parterowej. Przestronny układ z możliwością elastycznej aranżacji przestrzeni oraz własnym ogródkiem.
Mieszkanie M04 (46,11 m²) Funkcjonalne mieszkanie z bezpośrednim dostępem do przestrzeni zewnętrznej, łączące komfort z praktycznością.
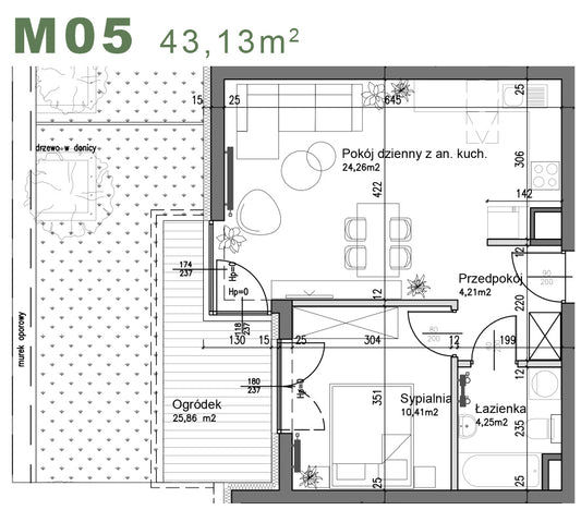
Mieszkanie M05 (43,13 m²) Najmniejsze w ofercie, ale doskonale rozplanowane mieszkanie z własnym ogródkiem, idealne jako pierwsze mieszkanie lub inwestycja pod wynajem.
Mieszkanie M06 (62,40 m²) Przestronne mieszkanie z dużym potencjałem aranżacyjnym, oferujące komfortową przestrzeń życiową z dostępem do własnego ogródka.
Wszystkie mieszkania w inwestycji charakteryzują się:
- Własną przestrzenią ogrodową
- Funkcjonalnymi układami pomieszczeń
- Dostępem do części wspólnych budynku
- Możliwością indywidualnej aranżacji wnętrz
- Optymalnym nasłonecznieniem
-
Mieszkanie - M01 - 48,07 m² - 2 pokoje - z ogródkiem
Cena regularna 793.000,00 złCena regularnaCena jednostkowa / naCena promocyjna 793.000,00 złDOSTĘPNE -
Mieszkanie - M02 - 45,48 m² - 2 pokoje - z ogródkiem
Cena regularna 795.900,00 złCena regularnaCena jednostkowa / naCena promocyjna 795.900,00 złDOSTĘPNE -
Mieszkanie - M03 - 64,07 m² - 3 pokoje - z ogródkiem
Cena regularna 1.185.200,00 złCena regularnaCena jednostkowa / naCena promocyjna 1.185.200,00 złDOSTĘPNE -
Mieszkanie - M04 - 46,11 m² - 3 pokoje - z ogródkiem
Cena regularna 829.900,00 złCena regularnaCena jednostkowa / naCena promocyjna 829.900,00 złREZERWACJA -
Mieszkanie - M05 - 43,13 m² - 2 pokoje - z ogródkiem
Cena regularna 784.900,00 złCena regularnaCena jednostkowa / naCena promocyjna 784.900,00 złREZERWACJA -
Mieszkanie - M06 - 62,40 m² - 3 pokoje - z ogródkiem
Cena regularna 1.123.200,00 złCena regularnaCena jednostkowa / naCena promocyjna 1.123.200,00 złREZERWACJA





