Delet Nieruchomości
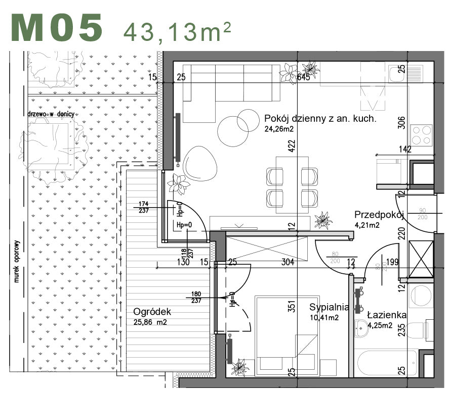
Mieszkanie - M05 - 43,13 m² - 2 pokoje - z ogródkiem
Mieszkanie - M05 - 43,13 m² - 2 pokoje - z ogródkiem
Aby zarezerwować mieszkanie napisz do nas na czacie lub wypełnij formularz kontaktowy.
Prezentujemy Państwu komfortowe mieszkanie M05 o powierzchni 43,13 m², zlokalizowane na parterze nowoczesnego budynku przy ulicy Śliwkowej w Krakowie. To idealna propozycja dla osób poszukujących funkcjonalnego dwupokojowego mieszkania z własną przestrzenią zewnętrzną.
Największym atutem mieszkania jest przestronny salon z aneksem kuchennym o powierzchni 24,26 m². To wyjątkowo jasne pomieszczenie zostało zaprojektowane z myślą o maksymalnym wykorzystaniu przestrzeni - część kuchenna oferuje miejsce na pełne wyposażenie AGD oraz wygodny blat roboczy, podczas gdy strefa dzienna pozwala na swobodną aranżację przestrzeni wypoczynkowej i jadalnianej. Duże przeszklenia nie tylko zapewniają doskonałe doświetlenie wnętrza naturalnym światłem, ale także otwierają przestrzeń na prywatny ogródek.
Strefa prywatna mieszkania obejmuje sypialnię o powierzchni 10,41 m², która zapewnia idealną przestrzeń do wypoczynku. Mieszkanie wyposażone jest w funkcjonalną łazienkę (4,25 m²) oraz przedpokój (4,21 m²) z przemyślaną przestrzenią na szafy i garderobę. Dodatkowym atutem jest przynależny ogródek o powierzchni około 25,86 m², który stanowi naturalne przedłużenie przestrzeni mieszkalnej.
Szczegółowe parametry mieszkania:
- Powierzchnia użytkowa: 43,13 m²
- Pokój dzienny z aneksem kuchennym: 24,26 m²
- Sypialnia: 10,41 m²
- Łazienka: 4,25 m²
- Przedpokój: 4,21 m²
- Ogródek: ok. 25,86 m²
Mieszkanie charakteryzuje się przemyślanym układem funkcjonalnym, który zapewnia wyraźny podział na strefę dzienną i prywatną. Ekspozycja względem stron świata oraz duże przeszklenia gwarantują optymalne nasłonecznienie wszystkich pomieszczeń. Dodatkowym atutem jest możliwość bezpośredniego wyjścia do własnego ogródka, co znacząco podnosi komfort codziennego życia i stwarza dodatkową przestrzeń do wypoczynku oraz rekreacji.
Mieszkanie doskonale sprawdzi się zarówno dla młodych par rozpoczynających wspólne życie, singli ceniących przestrzeń, jak i osób poszukujących dogodnej lokalizacji pod inwestycję. Połączenie funkcjonalnego układu z własną przestrzenią zewnętrzną czyni tę propozycję szczególnie atrakcyjną na rynku nieruchomości.
udostępnij

Standard Mieszkania
Tynki wewnętrzne
W pokojach, kuchni oraz korytarzach zastosowano maszynowe tynki gipsowe (kat. III lub zgodnie z Polską Normą). W łazienkach użyto tynków cementowo-wapiennych lub gipsowych, przystosowanych do indywidualnego wykończenia.
Podłogi
Wszystkie mieszkania wyposażone są w wylewki cementowe, zatartych na gładko, przygotowanych pod indywidualne wykończenie.
Stolarka
Okna PCV trzyszybowe o bardzo dobrej izolacji termicznej (U≤0,9 W/m²K), w kolorze białym od strony wewnętrznej. Wyposażone są w mikrowentylację lub nawiewniki. Parapety wewnętrzne wykonane z konglomeratu, zewnętrzne – metalowe. Drzwi wejściowe antywłamaniowe klasy RC3.
Balkony i tarasy
Posadzki balkonów oraz tarasów wykonane są z wylewki cementowo-betonowej, gotowej do indywidualnego wykończenia. Balustrady metalowe, malowane proszkowo, z eleganckim wypełnieniem ze szkła VSG.
Instalacja elektryczna
Każde mieszkanie posiada indywidualnie opomiarowaną instalację elektryczną, zabezpieczenie różnicowo-prądowe oraz kompletny osprzęt (gniazda 230V, przełączniki, przyłącze trójfazowe do kuchenki ceramicznej lub indukcyjnej).
Instalacja centralnego ogrzewania
Ciepło dostarczane z sieci miejskiej MPEC. Grzejniki płytowe wyposażone w głowice termostatyczne. Indywidualne liczniki ogrzewania znajdują się w szafkach rozdzielczych na korytarzu.
Instalacja wodno-kanalizacyjna
Instalacja kanalizacyjna wykonana z rur PCV z podejściami do wszystkich urządzeń sanitarnych. Ciepła i zimna woda dostarczana z sieci MPEC z indywidualnymi licznikami w szafkach na korytarzu.
Instalacja telefoniczna i internetowa
Do każdego mieszkania doprowadzono światłowód. Instalacja gotowa do indywidualnego wyposażenia w router i inne urządzenia (po stronie nabywcy).
Instalacja wideodomofonowa
Każde mieszkanie posiada instalację wideodomofonową z monitorem, zapewniającą wygodną obsługę drzwi wejściowych do budynku.
Instalacja antenowa
Na dachu budynku zamontowana jest antena zbiorcza, instalacja doprowadzona jest bezpośrednio do każdego mieszkania.