Delet Nieruchomości
Mieszkanie - M20 - 64,07 m² - 3 pokoje
Mieszkanie - M20 - 64,07 m² - 3 pokoje
Aby zarezerwować mieszkanie napisz do nas na czacie lub wypełnij formularz kontaktowy.
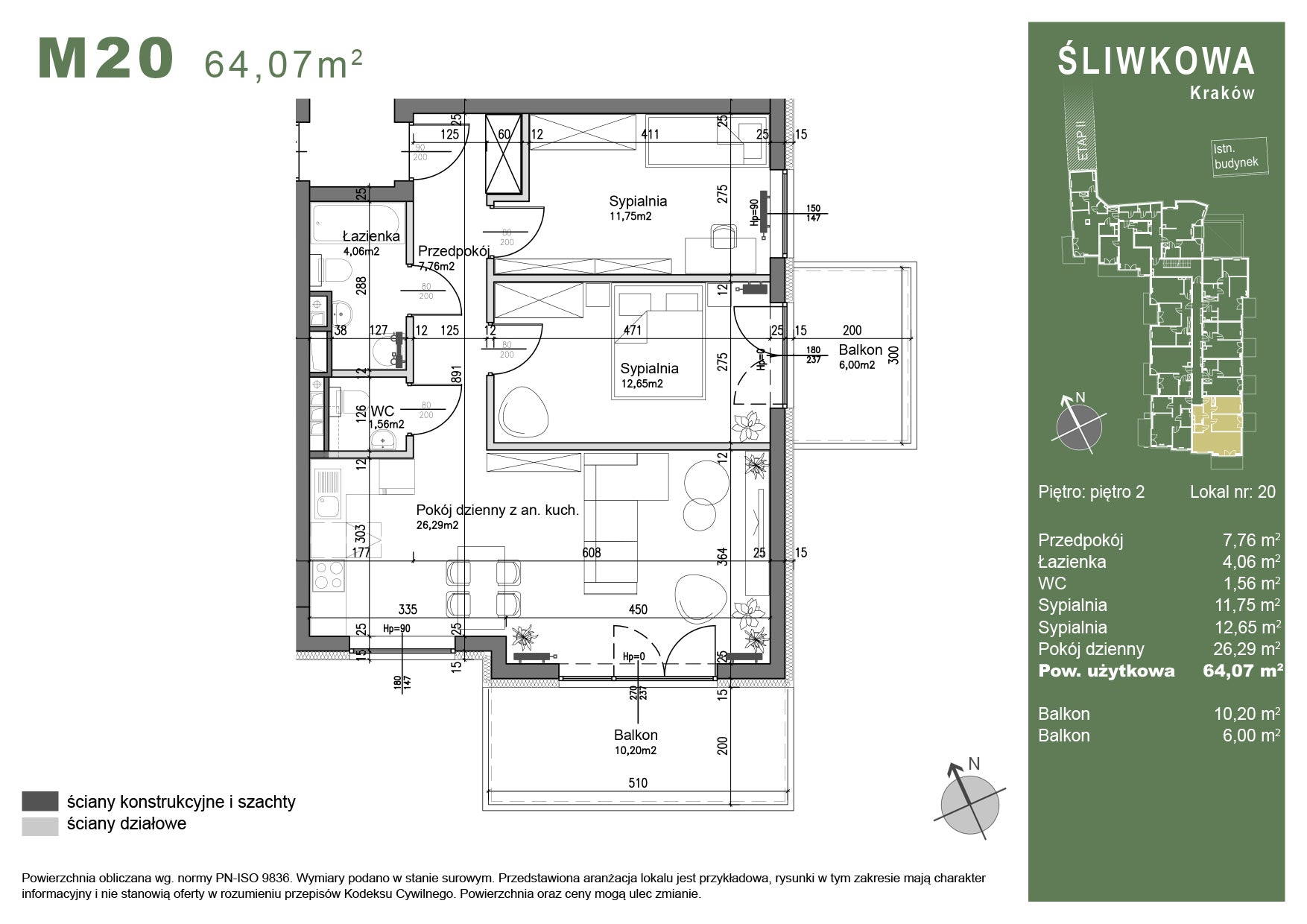
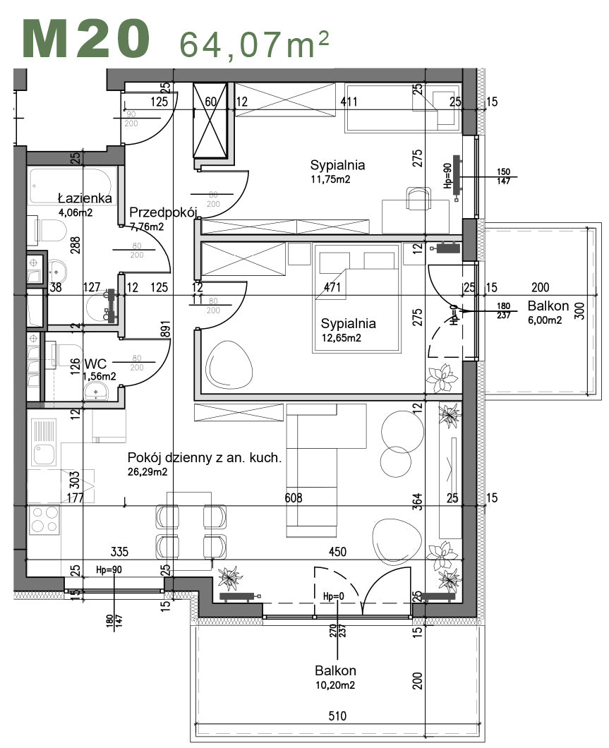
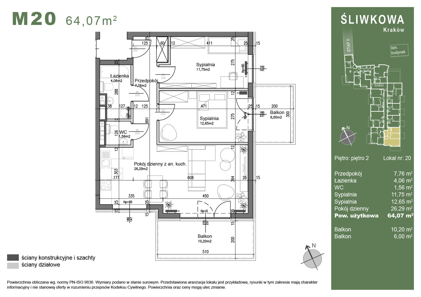
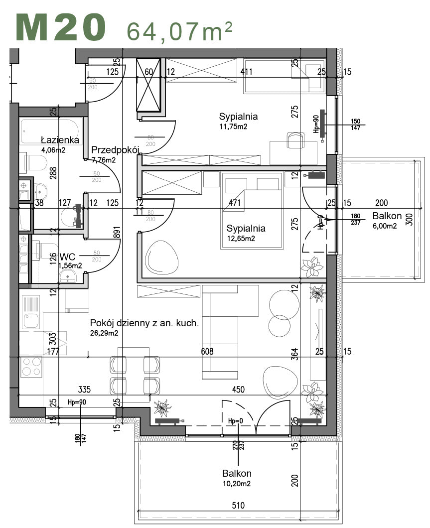
Prezentujemy Państwu przestronne mieszkanie M20 o powierzchni 64,07 m², zlokalizowane na drugim piętrze nowoczesnego budynku przy ulicy Śliwkowej w Krakowie. To komfortowe trzypokojowe mieszkanie zostało zaprojektowane z myślą o rodzinach ceniących przestrzeń i funkcjonalność.
Centralnym punktem mieszkania jest imponujący salon z aneksem kuchennym o powierzchni 26,29 m². Przestrzeń dzienna została ergonomicznie rozplanowana - część kuchenna wyposażona jest w miejsce na kompletne wyposażenie AGD oraz wygodny ciąg roboczy, podczas gdy przestronna strefa wypoczynkowa pozwala na swobodną aranżację przestrzeni jadalnianej i wypoczynkowej. Duże przeszklenia zapewniają doskonałe doświetlenie wnętrza i prowadzą na dwa przestronne balkony.
Strefa prywatna mieszkania obejmuje dwie niezależne sypialnie: pierwszą o powierzchni 12,65 m², drugą o powierzchni 11,75 m². Taki układ stwarza idealne warunki dla rodziny z dziećmi, zapewniając każdemu domownikowi własną przestrzeń. Komfort codziennego użytkowania podnoszą pełnowymiarowa łazienka (4,06 m²) oraz dodatkowe WC (1,56 m²), co jest szczególnie doceniane w rodzinnym mieszkaniu. Przestronny przedpokój (7,76 m²) oferuje miejsce na pojemną szafę i garderobę.
Wyjątkowym atutem mieszkania są dwa balkony - jeden o powierzchni 10,20 m², drugi o powierzchni 6,00 m², które stanowią naturalne przedłużenie przestrzeni mieszkalnej. Te dodatkowe strefy zewnętrzne doskonale sprawdzą się jako miejsca wypoczynku, porannej kawy czy spotkań z przyjaciółmi.
Szczegółowe parametry mieszkania:
- Powierzchnia użytkowa: 64,07 m²
- Pokój dzienny z aneksem kuchennym: 26,29 m²
- Sypialnia 1: 12,65 m²
- Sypialnia 2: 11,75 m²
- Łazienka: 4,06 m²
- WC: 1,56 m²
- Przedpokój: 7,76 m²
- Balkon 1: 10,20 m²
- Balkon 2: 6,00 m²
Mieszkanie wyróżnia się przemyślanym układem funkcjonalnym, który zapewnia wyraźny podział na strefę dzienną i prywatną. Na szczególną uwagę zasługuje rozdzielona strefa sanitarna (łazienka oraz dodatkowe WC), która znacząco podnosi komfort codziennego życia rodziny. Ekspozycja względem stron świata oraz duże przeszklenia gwarantują optymalne nasłonecznienie wszystkich pomieszczeń.
To mieszkanie idealnie sprawdzi się dla rodzin z dziećmi, osób pracujących zdalnie potrzebujących dodatkowego gabinetu, a także dla wszystkich, którzy cenią sobie przestrzeń i możliwość elastycznej aranżacji wnętrz. Połączenie przestronnego salonu z aneksem kuchennym, dwóch sypialni oraz dwóch balkonów stanowi unikatową propozycję na rynku nieruchomości.
udostępnij

Standard Mieszkania
Tynki wewnętrzne
W pokojach, kuchni oraz korytarzach zastosowano maszynowe tynki gipsowe (kat. III lub zgodnie z Polską Normą). W łazienkach użyto tynków cementowo-wapiennych lub gipsowych, przystosowanych do indywidualnego wykończenia.
Podłogi
Wszystkie mieszkania wyposażone są w wylewki cementowe, zatartych na gładko, przygotowanych pod indywidualne wykończenie.
Stolarka
Okna PCV trzyszybowe o bardzo dobrej izolacji termicznej (U≤0,9 W/m²K), w kolorze białym od strony wewnętrznej. Wyposażone są w mikrowentylację lub nawiewniki. Parapety wewnętrzne wykonane z konglomeratu, zewnętrzne – metalowe. Drzwi wejściowe antywłamaniowe klasy RC3.
Balkony i tarasy
Posadzki balkonów oraz tarasów wykonane są z wylewki cementowo-betonowej, gotowej do indywidualnego wykończenia. Balustrady metalowe, malowane proszkowo, z eleganckim wypełnieniem ze szkła VSG.
Instalacja elektryczna
Każde mieszkanie posiada indywidualnie opomiarowaną instalację elektryczną, zabezpieczenie różnicowo-prądowe oraz kompletny osprzęt (gniazda 230V, przełączniki, przyłącze trójfazowe do kuchenki ceramicznej lub indukcyjnej).
Instalacja centralnego ogrzewania
Ciepło dostarczane z sieci miejskiej MPEC. Grzejniki płytowe wyposażone w głowice termostatyczne. Indywidualne liczniki ogrzewania znajdują się w szafkach rozdzielczych na korytarzu.
Instalacja wodno-kanalizacyjna
Instalacja kanalizacyjna wykonana z rur PCV z podejściami do wszystkich urządzeń sanitarnych. Ciepła i zimna woda dostarczana z sieci MPEC z indywidualnymi licznikami w szafkach na korytarzu.
Instalacja telefoniczna i internetowa
Do każdego mieszkania doprowadzono światłowód. Instalacja gotowa do indywidualnego wyposażenia w router i inne urządzenia (po stronie nabywcy).
Instalacja wideodomofonowa
Każde mieszkanie posiada instalację wideodomofonową z monitorem, zapewniającą wygodną obsługę drzwi wejściowych do budynku.
Instalacja antenowa
Na dachu budynku zamontowana jest antena zbiorcza, instalacja doprowadzona jest bezpośrednio do każdego mieszkania.