Delet Nieruchomości
Mieszkanie - M17 - 62,20 m² - 3 pokoje
Mieszkanie - M17 - 62,20 m² - 3 pokoje
Aby zarezerwować mieszkanie napisz do nas na czacie lub wypełnij formularz kontaktowy.
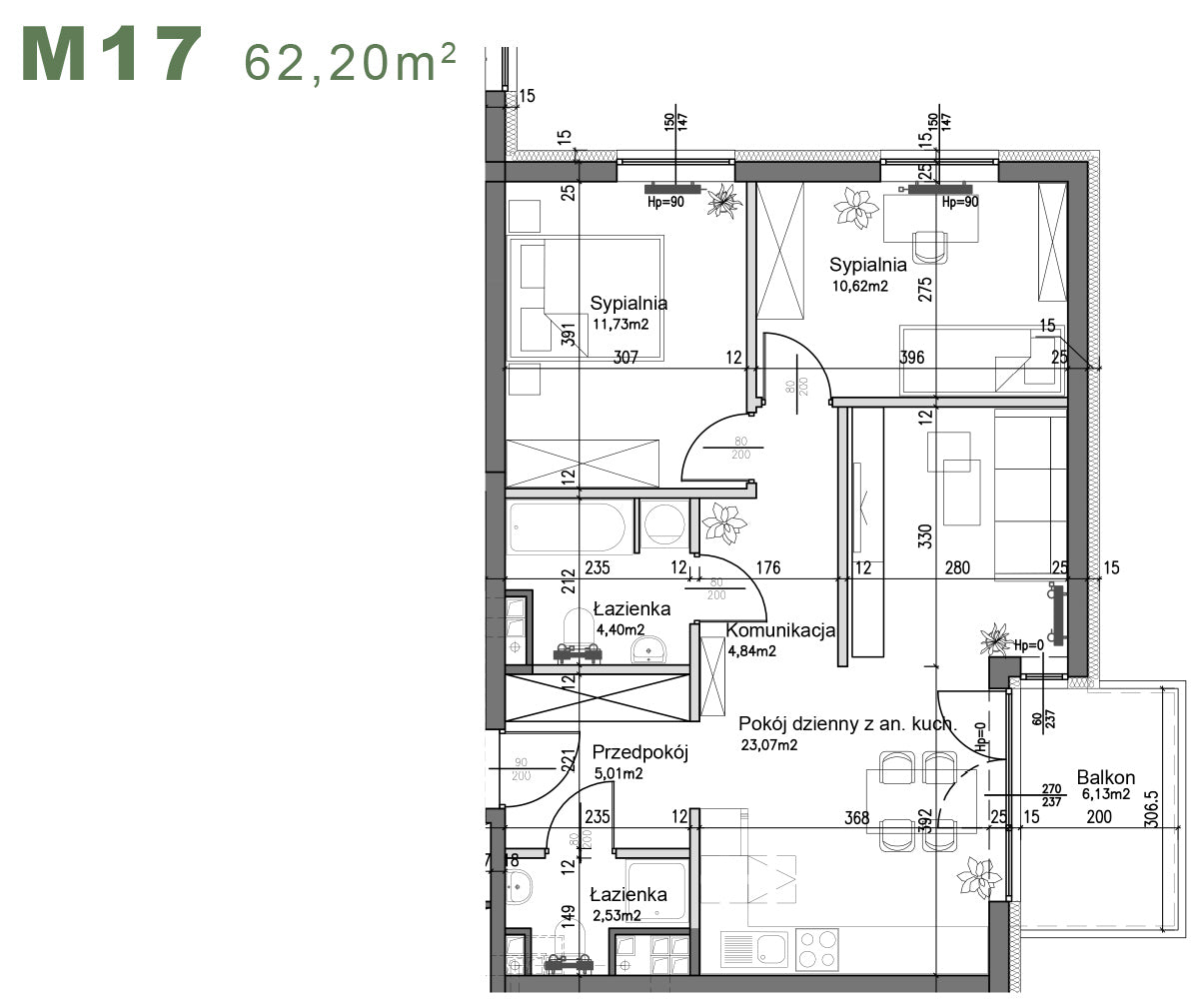
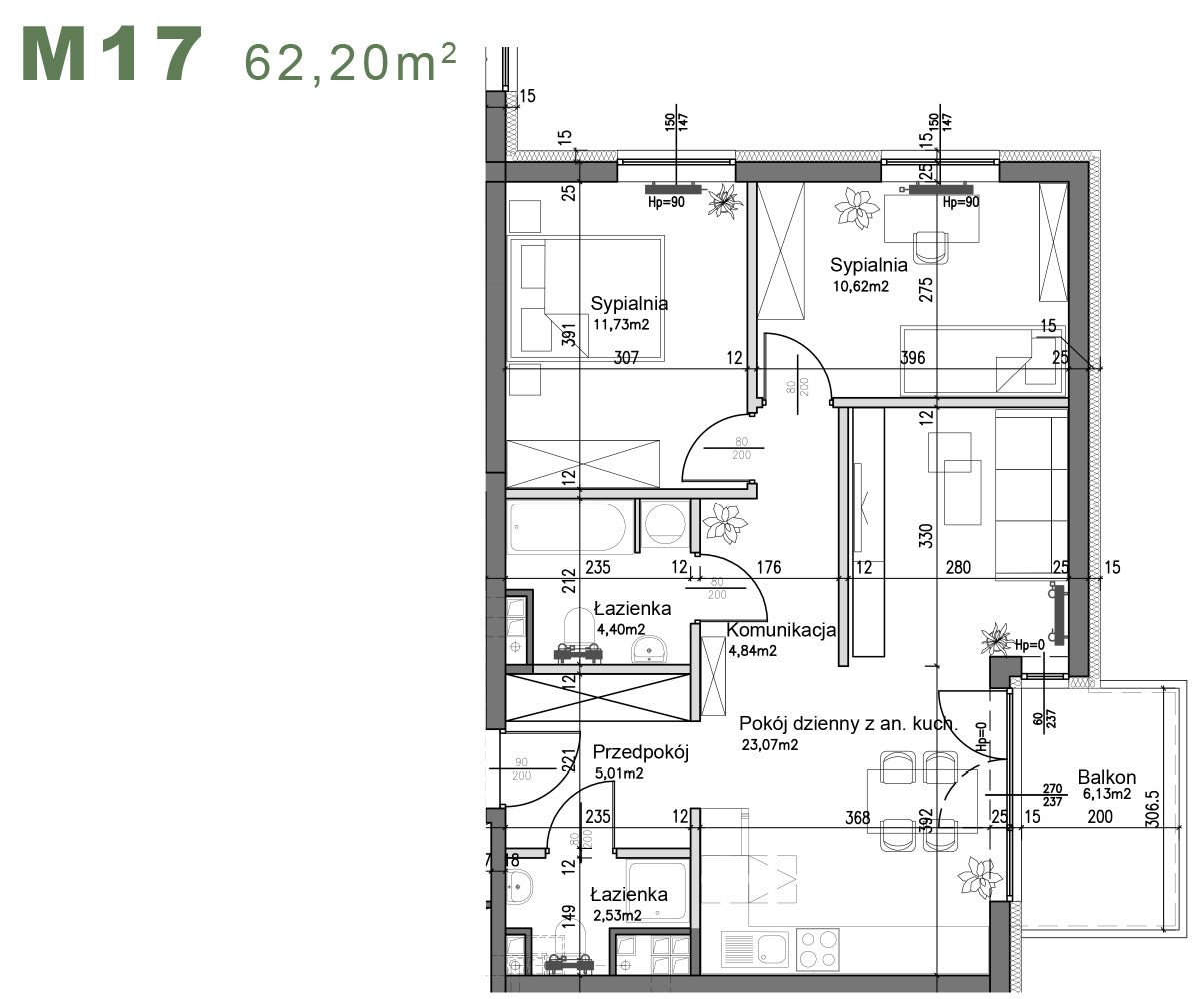
Prezentujemy Państwu wyjątkowe mieszkanie M17 o powierzchni 62,20 m², zlokalizowane na drugim piętrze nowoczesnego budynku przy ulicy Śliwkowej w Krakowie. To przestronne trzypokojowe mieszkanie zostało zaprojektowane z myślą o rodzinach ceniących komfort i funkcjonalność.
Centralnym punktem mieszkania jest jasny salon z aneksem kuchennym o powierzchni 23,07 m². Przestrzeń dzienna została ergonomicznie rozplanowana - część kuchenna wyposażona jest w miejsce na kompletne wyposażenie AGD oraz wygodny ciąg roboczy, podczas gdy strefa wypoczynkowa pozwala na swobodną aranżację przestrzeni jadalnianej i wypoczynkowej. Duże przeszklenia zapewniają doskonałe doświetlenie wnętrza i prowadzą na przestronny balkon.
Strefa prywatna mieszkania obejmuje dwie niezależne sypialnie: pierwszą o powierzchni 11,73 m², drugą o powierzchni 10,62 m². Taki układ stwarza idealne warunki dla rodziny z dziećmi, zapewniając każdemu domownikowi własną przestrzeń. Komfort codziennego użytkowania podnoszą dwie niezależne łazienki (2,53 m² oraz 4,40 m²), co jest szczególnie doceniane w rodzinnym mieszkaniu. Funkcjonalny przedpokój (5,01 m²) oferuje miejsce na szafy i garderobę, a dodatkowa przestrzeń komunikacyjna (4,84 m²) zwiększa użyteczność mieszkania.
Wyjątkowym atutem mieszkania jest przestronny balkon o powierzchni 6,13 m², który stanowi naturalne przedłużenie przestrzeni mieszkalnej. Ta dodatkowa strefa zewnętrzna doskonale sprawdzi się jako miejsce wypoczynku, porannej kawy czy spotkań z przyjaciółmi.
Szczegółowe parametry mieszkania:
- Powierzchnia użytkowa: 62,20 m²
- Pokój dzienny z aneksem kuchennym: 23,07 m²
- Sypialnia 1: 11,73 m²
- Sypialnia 2: 10,62 m²
- Łazienka 1: 2,53 m²
- Łazienka 2: 4,40 m²
- Przedpokój: 5,01 m²
- Komunikacja: 4,84 m²
- Balkon: 6,13 m²
Mieszkanie wyróżnia się przemyślanym układem funkcjonalnym, który zapewnia wyraźny podział na strefę dzienną i prywatną. Na szczególną uwagę zasługują dwie niezależne łazienki, które znacząco podnoszą komfort codziennego życia rodziny. Ekspozycja względem stron świata oraz duże przeszklenia gwarantują optymalne nasłonecznienie wszystkich pomieszczeń.
To mieszkanie idealnie sprawdzi się dla rodzin z dziećmi, osób pracujących zdalnie potrzebujących dodatkowego gabinetu, a także dla wszystkich, którzy cenią sobie przestrzeń i możliwość elastycznej aranżacji wnętrz. Połączenie przestronnego salonu z aneksem kuchennym, dwóch sypialni oraz balkonu stanowi unikatową propozycję na rynku nieruchomości.
udostępnij

Standard Mieszkania
Tynki wewnętrzne
W pokojach, kuchni oraz korytarzach zastosowano maszynowe tynki gipsowe (kat. III lub zgodnie z Polską Normą). W łazienkach użyto tynków cementowo-wapiennych lub gipsowych, przystosowanych do indywidualnego wykończenia.
Podłogi
Wszystkie mieszkania wyposażone są w wylewki cementowe, zatartych na gładko, przygotowanych pod indywidualne wykończenie.
Stolarka
Okna PCV trzyszybowe o bardzo dobrej izolacji termicznej (U≤0,9 W/m²K), w kolorze białym od strony wewnętrznej. Wyposażone są w mikrowentylację lub nawiewniki. Parapety wewnętrzne wykonane z konglomeratu, zewnętrzne – metalowe. Drzwi wejściowe antywłamaniowe klasy RC3.
Balkony i tarasy
Posadzki balkonów oraz tarasów wykonane są z wylewki cementowo-betonowej, gotowej do indywidualnego wykończenia. Balustrady metalowe, malowane proszkowo, z eleganckim wypełnieniem ze szkła VSG.
Instalacja elektryczna
Każde mieszkanie posiada indywidualnie opomiarowaną instalację elektryczną, zabezpieczenie różnicowo-prądowe oraz kompletny osprzęt (gniazda 230V, przełączniki, przyłącze trójfazowe do kuchenki ceramicznej lub indukcyjnej).
Instalacja centralnego ogrzewania
Ciepło dostarczane z sieci miejskiej MPEC. Grzejniki płytowe wyposażone w głowice termostatyczne. Indywidualne liczniki ogrzewania znajdują się w szafkach rozdzielczych na korytarzu.
Instalacja wodno-kanalizacyjna
Instalacja kanalizacyjna wykonana z rur PCV z podejściami do wszystkich urządzeń sanitarnych. Ciepła i zimna woda dostarczana z sieci MPEC z indywidualnymi licznikami w szafkach na korytarzu.
Instalacja telefoniczna i internetowa
Do każdego mieszkania doprowadzono światłowód. Instalacja gotowa do indywidualnego wyposażenia w router i inne urządzenia (po stronie nabywcy).
Instalacja wideodomofonowa
Każde mieszkanie posiada instalację wideodomofonową z monitorem, zapewniającą wygodną obsługę drzwi wejściowych do budynku.
Instalacja antenowa
Na dachu budynku zamontowana jest antena zbiorcza, instalacja doprowadzona jest bezpośrednio do każdego mieszkania.