Delet Nieruchomości
Mieszkanie - M16 - 48,13 m² - 2 pokoje
Mieszkanie - M16 - 48,13 m² - 2 pokoje
Aby zarezerwować mieszkanie napisz do nas na czacie lub wypełnij formularz kontaktowy.
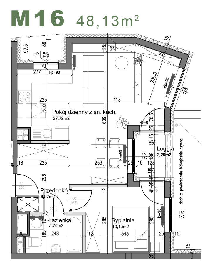
Prezentujemy Państwu funkcjonalne mieszkanie M16 o powierzchni 48,13 m², zlokalizowane na pierwszym piętrze nowoczesnego budynku przy ulicy Śliwkowej w Krakowie. To praktyczne dwupokojowe mieszkanie zostało zaprojektowane z myślą o osobach ceniących przestrzeń i ergonomiczne rozwiązania.
Centralnym punktem mieszkania jest wyjątkowo przestronny salon z aneksem kuchennym o powierzchni 27,72 m². Ta imponująca przestrzeń dzienna została ergonomicznie rozplanowana - część kuchenna wyposażona jest w miejsce na kompletne wyposażenie AGD oraz wygodny ciąg roboczy, podczas gdy obszerna strefa wypoczynkowa pozwala na swobodną aranżację przestrzeni jadalnianej i wypoczynkowej. Duże przeszklenia zapewniają doskonałe doświetlenie wnętrza i prowadzą do przytulnej loggii.
Strefa prywatna mieszkania obejmuje wygodną sypialnię o powierzchni 10,13 m², która zapewnia intymność i spokój. Funkcjonalna łazienka (3,76 m²) została zaprojektowana z dbałością o każdy detal, a praktyczny przedpokój (6,52 m²) oferuje miejsce na niezbędne szafy i garderobę.
Wyjątkowym atutem mieszkania jest przytulna loggia o powierzchni 2,29 m², która stanowi naturalne przedłużenie przestrzeni mieszkalnej. Ta kameralna strefa zewnętrzna doskonale sprawdzi się jako miejsce porannej kawy czy małego domowego ogródka z ziołami.
Szczegółowe parametry mieszkania:
- Powierzchnia użytkowa: 48,13 m²
- Pokój dzienny z aneksem kuchennym: 27,72 m²
- Sypialnia: 10,13 m²
- Łazienka: 3,76 m²
- Przedpokój: 6,52 m²
- Loggia: 2,29 m²
Mieszkanie wyróżnia się przemyślanym układem funkcjonalnym, który zapewnia optymalny komfort użytkowania. Na szczególną uwagę zasługuje wyjątkowo przestronny salon z aneksem kuchennym, który dzięki swoim rozmiarom stanowi centrum życia domowego. Ekspozycja względem stron świata oraz duże przeszklenia gwarantują doskonałe nasłonecznienie wszystkich pomieszczeń.
To mieszkanie idealnie sprawdzi się dla młodych par, singli ceniących przestrzeń, a także jako inwestycja pod wynajem. Połączenie funkcjonalnego układu pomieszczeń z przytulną loggią stanowi atrakcyjną propozycję na rynku nieruchomości.
udostępnij

Standard Mieszkania
Tynki wewnętrzne
W pokojach, kuchni oraz korytarzach zastosowano maszynowe tynki gipsowe (kat. III lub zgodnie z Polską Normą). W łazienkach użyto tynków cementowo-wapiennych lub gipsowych, przystosowanych do indywidualnego wykończenia.
Podłogi
Wszystkie mieszkania wyposażone są w wylewki cementowe, zatartych na gładko, przygotowanych pod indywidualne wykończenie.
Stolarka
Okna PCV trzyszybowe o bardzo dobrej izolacji termicznej (U≤0,9 W/m²K), w kolorze białym od strony wewnętrznej. Wyposażone są w mikrowentylację lub nawiewniki. Parapety wewnętrzne wykonane z konglomeratu, zewnętrzne – metalowe. Drzwi wejściowe antywłamaniowe klasy RC3.
Balkony i tarasy
Posadzki balkonów oraz tarasów wykonane są z wylewki cementowo-betonowej, gotowej do indywidualnego wykończenia. Balustrady metalowe, malowane proszkowo, z eleganckim wypełnieniem ze szkła VSG.
Instalacja elektryczna
Każde mieszkanie posiada indywidualnie opomiarowaną instalację elektryczną, zabezpieczenie różnicowo-prądowe oraz kompletny osprzęt (gniazda 230V, przełączniki, przyłącze trójfazowe do kuchenki ceramicznej lub indukcyjnej).
Instalacja centralnego ogrzewania
Ciepło dostarczane z sieci miejskiej MPEC. Grzejniki płytowe wyposażone w głowice termostatyczne. Indywidualne liczniki ogrzewania znajdują się w szafkach rozdzielczych na korytarzu.
Instalacja wodno-kanalizacyjna
Instalacja kanalizacyjna wykonana z rur PCV z podejściami do wszystkich urządzeń sanitarnych. Ciepła i zimna woda dostarczana z sieci MPEC z indywidualnymi licznikami w szafkach na korytarzu.
Instalacja telefoniczna i internetowa
Do każdego mieszkania doprowadzono światłowód. Instalacja gotowa do indywidualnego wyposażenia w router i inne urządzenia (po stronie nabywcy).
Instalacja wideodomofonowa
Każde mieszkanie posiada instalację wideodomofonową z monitorem, zapewniającą wygodną obsługę drzwi wejściowych do budynku.
Instalacja antenowa
Na dachu budynku zamontowana jest antena zbiorcza, instalacja doprowadzona jest bezpośrednio do każdego mieszkania.